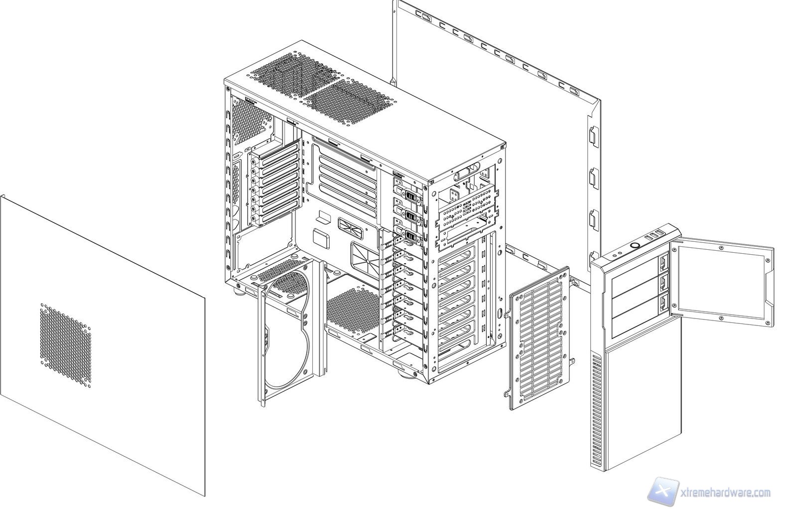
NANOXIA DS2, assemblaggio e cablaggio
In questo paragrafo analizzeremo velocemente il montaggio di un sistema Intel, ed il conseguente cablaggio posteriore ed anteriore. Anche per gli utenti poco esperti la procedura è molto facile: per prima cosa dovrete montare l’alimentatore alla base del cabinet, facendo attenzione a passare il connettore di alimentazione supplementare della scheda madre, da 4/8 pin direttamente sopra la VGA. Date le dimensioni ridotte in altezza, difficilmente saranno necessarie delle prolunghe per il connettore CPU 4+4 pin e per il connettore della scheda madre, ma ne consigliamo sempre l’adozione. Fatto questo consigliamo l’installazione dei dischi rigidi, facendo attenzione a posizionarli in serie nei cage predisposti a scorrimento. Fatto questo sarà necessario montare il lettore ottico: dovrete togliere una mascherina frontale. Fatto questo, e bloccato il lettore tramite il sistema di blocco laterale si passa all’installazione della scheda madre. Se si possiede un dissipatore Intel, tramite il solito sistema Push-Pin, sarà possibile installarlo successivamente, altrimenti se volete potete già procedere ad installare il backplate del dissipatore della CPU, facendo attenzione a stendere un sottile velo di pasta termica alla base della CPU stessa. In sostanza, se la vostra scheda madre non è mini-ITX, dovrete prima montare i distanziatori nei fori per il formato ATX, serrarli molto bene – consigliamo una pinza larga 1cm durante quest’operazione, su ogni cabinet – e poi apporre la scheda madre, serrandola con le viti fornite nella confezione. Se avete un dissipatore aftermarket potete utilizzare il foro posteriore, che è molto pratico e vi aiuterà non poco all’atto della procedura. Dopo aver montato il dissipatore sulla scheda madre, sarà necessario montare la scheda video, le RAM ed infine procedere all’assemblaggio dei cavi di connessione del cabinet alla scheda madre. Per fare un lavoro pulito consigliamo l’utilizzo delle fascette restringenti fornite in bundle.
Assemblaggio, foto
Il cablaggio posteriore è discreto, avremmo apprezzato però uno spessore superiore. Il risultato finale sarà comunque molto buono.
Per quanto riguarda il cablaggio anteriore però siamo dinanzi ad un ottimo risultato, complice anche la prolunga fornita in dotazione da Nanoxia.
